Beschrijving
Nieuwsgierig?
Welkom thuis! Stel je voor: wakker worden met het zachte gezang van vogels, volop ruimte en privacy om je heen en elke dag genieten van het groene buitenleven. Dat kan aan de Schoorstraat 39 in Udenhout. Hier vind je niet zomaar een woning maar een echt thuishonk met een woonoppervlakte van 179m2 op een indrukwekkend perceel van maar liefst 956m2!
Udenhout is zo’n plek waar je je meteen thuis voelt. Volop voorzieningen dichtbij, zoals fijne scholen, winkels voor de dagelijkse boodschappen en gezellige horeca. Groot voordeel: op een steenworp afstand zit je midden in de natuur van de Loonse en Drunense Duinen. Oftewel, de mooiste wandel- en fietsroutes beginnen letterlijk om de hoek!
Achter de charmante gevel van deze woning uit 1920 schuilt een verrassend royaal en hoogwaardig afgewerkt huis. Door de jaren heen is de woning verbouwd, verduurzaamd en gemoderniseerd met groot respect voor de authentieke elementen. Denk aan fraaie en-suite deuren met glas-in-lood, warme houtaccenten en een indeling die perfect past bij het leven van nu.
De woning biedt uitzonderlijk veel leefruimte met twee woonkamers, een luxe maatwerk keuken, drie comfortabele slaapkamers, een aparte praktijkruimte met eigen ingang, een ruime garage en een diepe, zonnige achtertuin op het zuidwesten.
Ook op het gebied van comfort en duurzaamheid is aan alles gedacht. De woning is voorzien van dubbele beglazing (HR glas), goede isolatie, vloerverwarming op de begane grond en in de badkamer, 15 zonnepanelen en een jonge Vaillant cv-ketel (2021). Daarbij zijn belangrijke onderdelen zoals dak, goten en elektra niet uit het oog verloren.
Dit gezinshuis is absoluut een bezichtiging waard. Interesse? Neem dan snel contact op voor een afspraak. Schoorstraat 39 zou zomaar eens jouw nieuwe thuis kunnen zijn! Wij zijn bereikbaar via WhatsApp, telefonisch of via onze website.
Indeling
Welkom!
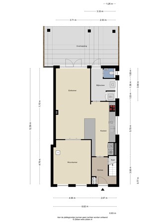
Je betreedt de woning via de ruime hal met genoeg ruimte voor je garderobe, meterkast, trappenkast en trapopgang naar de eerste verdieping.
Dit voelt als thuiskomen!
De royale woonkamer met vloerverwarming bestaat uit een zitgedeelte, een eetgedeelte en de keuken.
Het zitgedeelte beschikt over een eikenhouten vloer en een nieuwe houtkachel die zorgt voor een fijne warme sfeer. De originele en-suite deuren met glas in lood scheiden de voorkamer van het eetgedeelte en benadrukken het karakter van de woning.
In het achterste gedeelte bevinden zich de keuken en de ruimte waar momenteel de eettafel staat. Dit deel biedt volop ruimte voor gezellig tafelen. Via de dubbele tuindeuren is er direct toegang tot de tuin. Ook in de deur naar de bijkeuken is prachtig glas-in-lood verwerkt wat het authentieke karakter van de woning doorzet.
Keukenprins of prinses?
De open keuken is een echte eyecatcher. Deze maatwerk keuken is in ca. 2013 gerealiseerd door een keuken- en interieurbouwer en dat zie je zeker terug in de kwaliteit. Geen standaard keuken maar massief houten frontjes, een donker composiet werkblad en ontzettend veel kastruimte. De keuken beschikt over diverse inbouwapparatuur waaronder een 5-pits inductiekookplaat, dubbele spoelbak, koelkast, vriezer, combi stoomoven, vaatwasser, afzuigkap en een inbouw koffieapparaat. Het "schiereiland" fungeert als een gezellige eet- of borrelplek en is ideaal voor een snel ontbijt, huiswerkmomenten of een goed glas wijn tijdens het koken.
Vanuit de keuken en woonkamer bereik je de ruime bijkeuken aan de achterzijde van de woning met aansluitingen voor de wasmachine en droger . Tevens is hier ook een apart toilet aanwezig.
Eerste verdieping
Kom tot rust!
Op de eerste verdieping bevinden zich 3 slaapkamers van een fijn formaat. Op de vloer van 2 slaapkamers ligt een laminaatvloer in een neutrale houtlook. Op de vloer van de ouder (tevens grootste ) slaapkamer aan de achterzijde van de woning ligt lekkere warme vloerbedekking. Op deze kamer is een op maat gemaakte kledingkast al aanwezig. Achter deze kast heb je ook nog toegang tot veel opbergruimte. Hoe handig!
Even lekker ontspannen!
De verzorgde badkamer is ruim, stijlvol en uitstekend onderhouden. De ruimte is comfortabel ingericht met een tegelvloer voorzien van vloerverwarming, volledig betegelde wanden, een ligbad, inloopdouche, dubbele wastafel met meubel en een designradiator.
Verder is er op deze verdieping nog een apart toilet aanwezig.
Tweede verdieping
Via een vlizotrap bereik je de ruime bergzolder. Hier bevindt zich de Vaillant cv-ketel (2021). Ideaal als extra opslagruimte.
Tuin
Buitenlucht doet je goed!
Met een indrukwekkende diepte van circa 85 meter en een gunstige ligging op het zuidwesten is deze achtertuin werkelijk uniek. Hier profiteer je optimaal van zon, rust en privacy. Direct achter de woning ligt een royaal overdekt terras: de perfecte plek voor lange zomeravonden, gezellige diners of een ontspannen kop koffie in het voor- en najaar.
Ongeveer halverwege de tuin bevindt zich een volledig geïsoleerde praktijkruimte met een eigen entree. Ideaal voor werken aan huis of als hobbyruimte, maar ook uitstekend geschikt als extra slaapkamer of comfortabele logeerkamer. De ruimte beschikt over een hal met toilet en een sfeervolle kamer met gashaard. (De cv-ketel dient hier nog vervangen te worden.)
Achter de praktijkruimte staat een vrijstaande stenen garage met een elektrisch bedienbare deur en een ruime vliering voor extra bergruimte.
En dan gaat de tuin nóg verder! Je vindt hier een houten berging met overkapping, een kippenhok met uitloop en helemaal achterin een royaal perceel dat momenteel is ingericht als moestuin.
Een uitzonderlijk diepe tuin met eindeloze mogelijkheden — een droom voor liefhebbers van ruimte en buitenleven.
Bijzonderheden
* vloerverwarming keuken, woonkamer en badkamer
* energielabel D
* 15 zonnepanelen
* perceel van 956m2
* kosten glasvezel €39,- per maand (lidmaatschap glasvezelnetwerk coöperatie GroenewoudGlas)
Sinds 1 september 2010 is het verplicht om aan de eisen te voldoen van de meetinstructie voor gebruiksoppervlakte woningen en bruto inhoud. Deze is verplicht gesteld door de NVM, VastgoedPRO en VBO om de kwaliteit van inmetingen te waarborgen. Deze meetinstructie is gebaseerd op de NEN2580: de norm voor het bepalen van oppervlakten en de inhoud van woningen. Voor de gevallen waarin de meetinstructie geen uitsluitsel geeft over het bepalen van de gebruiksoppervlakte, moet namelijk de NEN2580 worden gebruikt. Meetinstructies die wel nauwkeurig uitsluitsel kunnen geven over oppervlakte bepaling, mogen dus afwijken van de NEN2580.
Brabantstad Makelaardij laat haar woningen inmeten door een erkend bedrijf. Mocht je het meetrapport willen inzien, dan horen wij dit graag!