Beschrijving
Nieuwsgierig?
Welkom aan de Eikstraat 43 in het hart van de gewilde Bomenbuurt ; één van de meest geliefde woonwijken van Tilburg. Hier woon je in een sfeervolle jaren ’30 hoekwoning met karakter die van binnen verrassend modern en strak is afgewerkt. De woning combineert het authentieke gevoel van vroeger met het comfort van nu; een luxe keuken, nagenoeg overal dubbel glas (met uitzondering enkele ramen achterzijde 1e verdieping) en een stijlvolle afwerking.
Dankzij de stadstuin op het Zuiden, het omgebouwde atelier met vloerverwarming (voorheen garage) en de goede ligging nabij het bruisende stadscentrum is dit een plek waar je het beste van twee werelden ervaart – rustig wonen met alle stadse voorzieningen op loopafstand. Denk aan gezellige cafés, winkels, scholen, Spoorpark en het station; alles binnen handbereik.
De woning ademt warmte en stijl – van de massief eiken vloer met vloerverwarming tot de nieuwe houtkachel (2022) en de lichte, open ruimtes. Kortom: een heerlijk thuis waar sfeer, comfort en ligging perfect samenkomen.
Deze woning is absoluut een bezichtiging waard! Interesse? Neem dan snel contact op voor een afspraak. Eikstraat 43 zou zomaar eens jouw nieuwe thuis kunnen zijn! Wij zijn bereikbaar via WhatsApp, telefonisch of via onze website.
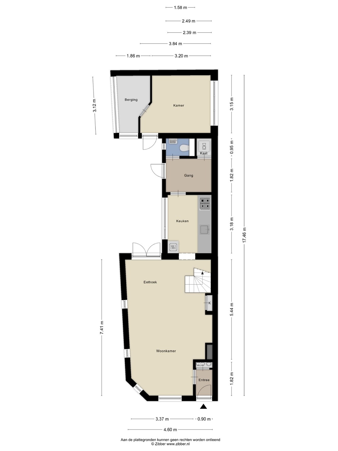
Indeling
Welkom!
Je komt binnen in een nette hal met meterkast en ruimte voor de garderobe. Vanuit hier stap je de sfeervolle woonkamer binnen.
Dit voelt als thuiskomen!
De woonkamer is een heerlijke lichte ruimte met een massief houten vloer voorzien van vloerverwarming, lichte wanden en een gezellige houtkachel (2022) die direct zorgt voor sfeer en warmte. Grote raampartijen en openslaande tuindeuren zorgen voor veel natuurlijk licht en een fijne verbinding met buiten. De trap naar de eerste verdieping is stijlvol geïntegreerd in de woonkamer wat zorgt voor een open en ruimtelijk gevoel.
Keukenprins of prinses?
Vanuit de woonkamer loop je direct door naar de ruime, halfopen keuken — een fijne overgang die zorgt voor een gezellige verbinding tussen wonen en koken. De keuken heeft een strak design: lichte witte frontjes en een donker stenen aanrechtblad. De keuken is volledig uitgerust met inbouwapparatuur zoals een oven, koelkast met vriesvak, vaatwasser, afzuigkap en een 4-pits gasfornuis. Dankzij de vloerverwarming is het hier extra aangenaam koken. De praktische tegelvloer met speels retromotief maakt het geheel helemaal af.
Vanuit de keuken is de praktische bijkeuken bereikbaar, met in een aparte ruimte aansluitingen voor de wasmachine en droger en toegang tot de tuin en het toilet. Tevens hangt in deze ruimte de unit voor de vloerverwarming.
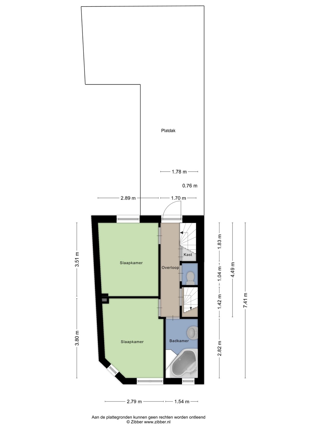
Eerste verdieping
Kom tot rust!
Via de vaste trap bereik je de eerste verdieping met twee ruime slaapkamers van een fijn formaat, een badkamer en een apart toilet.
Alle slaapkamers zijn voorzien van een houten planken vloer wat zorgt voor een warme en rustige uitstraling.
Even ontspannen!
De voormalige derde slaapkamer is omgetoverd tot een ruime badkamer uitgevoerd met een hoekbad met douchemogelijkheid, wastafel en verwarming. De zwart-wit geblokte tegelvloer geeft de ruimte een speels retroaccent.
Vanaf de overloop is er toegang tot het platte dak waar de mogelijkheid bestaat om een royaal dakterras te realiseren – een waardevolle kans voor extra buitenruimte!
Tweede verdieping
Het hoogste plekkie!
Een vaste trap leidt naar de tweede verdieping waar zich de cv-ketel (Bosch, 2012) bevindt. Deze verdieping beschikt over veel bergruimte achter de knieschotten en heeft twee dakramen die zorgen voor voldoende licht. Deze zolder is ideaal te gebruiken als extra slaapkamer, hobbyruimte of thuiskantoor.
Tuin
Buitenlucht doet je goed!
De compacte stadstuin ligt op het Zuiden en is onderhoudsvriendelijk aangelegd. Via de tuin bereik je de voormalige garage die omgebouwd is tot een praktische combinatie van berging en atelier, werkruimte of bar. Laat je fantasie de vrije loop!
Aan de straatzijde bevindt zich de berging met handmatige roldeur ideaal voor fietsen of extra opslag terwijl het andere gedeelte is ingericht als gezellige werk- of atelierruimte compleet met vloerverwarming en isolatie. Dankzij de prettige indeling is dit een perfecte plek om te werken, te klussen of te ontspannen, en mocht je liever één grote ruimte willen, dan is dat eenvoudig weer te realiseren.
Bijzonderheden
* energielabel E
* voormalige garage omgebouwd tot extra ruimte (niet meegenomen in woonoppervlakte) met vloerverwarming en berging
* vloerverwarming keuken en woonkamer
* nieuwe houtkachel in woonkamer
* sfeervolle jaren 30 hoekwoning
Sinds 1 september 2010 is het verplicht om aan de eisen te voldoen van de meetinstructie voor gebruiksoppervlakte woningen en bruto inhoud. Deze is verplicht gesteld door de NVM, VastgoedPRO en VBO om de kwaliteit van inmetingen te waarborgen. Deze meetinstructie is gebaseerd op de NEN2580: de norm voor het bepalen van oppervlakten en de inhoud van woningen. Voor de gevallen waarin de meetinstructie geen uitsluitsel geeft over het bepalen van de gebruiksoppervlakte, moet namelijk de NEN2580 worden gebruikt. Meetinstructies die wel nauwkeurig uitsluitsel kunnen geven over oppervlakte bepaling, mogen dus afwijken van de NEN2580.
Brabantstad Makelaardij laat haar woningen inmeten door een erkend bedrijf. Mocht je het meetrapport willen inzien, dan horen wij dit graag!