Beschrijving
Nieuwsgierig?
Welkom thuis aan de Boomkampstraat 5 in Tilburg. Deze charmante tussenwoning staat in de geliefde wijk Groeseind/Oud Noord. De woning biedt volop mogelijkheden voor kopers die graag een eigen touche willen geven aan hun nieuwe woning.
Op slechts enkele minuten fietsen bevinden zich het bruisende centrum van Tilburg, de creatieve Spoorzone en het Centraal Station. In de directe omgeving vind je supermarkten, een bushalte, diverse horecagelegenheden en meerdere basisscholen. Dankzij de nabijgelegen Ringbaan zijn steden als Breda, Eindhoven en ’s-Hertogenbosch uitstekend bereikbaar.
De woning staat op een perceel van 146 m² en beschikt over een heerlijke diepe achtertuin op het noorden met een grote stenen berging over de volle breedte. Daarnaast is er aandacht besteed aan comfort en duurzaamheid. Zo zijn er 12 zonnepanelen (2020) aanwezig en een zonneboilerinstallatie (Nefit, ca. 2008) met twee aparte panelen voor warm tapwater. De begane grond is grotendeels voorzien van comfortabele vloerverwarming. De badkamer is recent vernieuwd en heeft een moderne en verzorgde uitstraling. Het buitenschilderwerk is in 2024 uitgevoerd. Verder is de woning voorzien van dubbel glas en beschikt grotendeels over rolluiken.
Een woning met een solide basis, volop leefruimte en mogelijkheden om deze geheel naar eigen smaak verder te verfijnen.
Aarzel niet langer en neem contact op voor een bezichtiging. Voor je het weet ben jij de gelukkige eigenaar van deze woning!
Wij zijn via WhatsApp, telefonisch of via onze website te bereiken.
Indeling
Welkom!
Kom binnen in de entree met de volgende indeling:
Ruime hal met ruimte voor je garderobe, trap naar de eerste verdieping en de deur naar de woonkamer.
Dit voelt als thuiskomen!
De woonkamer heeft een rechthoekige indeling en voelt licht en ruim aan. De gemêleerde tegelvloer in warme natuurtinten loopt naadloos door richting de keuken en is voorzien van comfortabele vloerverwarming. Een airco-unit zorgt voor extra comfort tijdens warme zomerdagen.
Aan de achterzijde bevindt zich een praktisch klapraampje met een op afstand bedienbare AXA raamopener – een slimme en comfortabele toevoeging.
Keukenprins of prinses?
De halfopen keuken sluit mooi aan op de woonkamer en biedt volop werk- en bergruimte. De houtkleurige fronten en het hittebestendige werkblad geven de ruimte een warme uitstraling. De keuken is uitgerust met een 5-pits gasfornuis met wokbrander, koelkast, vaatwasser, afzuigkap, quooker en een spoelbak met uittrekbare kraan. Er is ruimte voor een kleine eettafel en via de keuken bereik je de ruime kelder waar zich tevens de meterkast bevindt.
Aansluitend vind je een praktische bijkeuken. Deze is recent geschilderd en voorzien van een grote voorraadkast met schuifdeur. Hierachter bevinden zich ook de aansluitingen voor wasmachine en droger. De blauwe tegelvloer loopt door in het separate toilet. Vanuit de bijkeuken loop je door naar de badkamer.
Even ontspannen!
De badkamer is ca. twee jaar geleden opgeknapt en keurig afgewerkt. De ruimte beschikt over een bubbelbad, een inloopdouche met nieuwe glazen wand, een groot wastafelmeubel met houtlook fronten en een designradiator. De vernieuwde vloertegels met elektrische vloerverwarming zorgen voor extra comfort. Daarnaast zijn de mechanische ventilatie en diverse voorzieningen recent gemoderniseerd. Dankzij de ingebouwde radio geniet u hier ook van uw favoriete muziek of nieuws tijdens een ontspannen moment. Een complete en comfortabele badkamer op de begane grond.
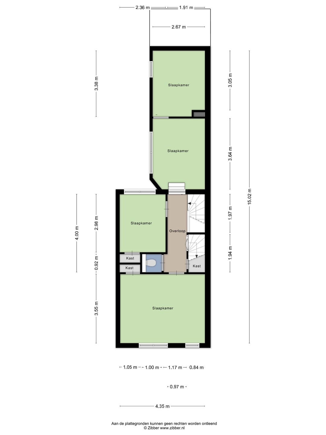
Eerste verdieping
Kom tot rust!
Op de overloop ligt een laminaatvloer in neutrale houttint die is doorgelegd naar vrijwel alle slaapkamers. Hier bevinden zich tevens een apart toilet en een praktische trappenkast.
Slaapkamer voorzijde
De royale ouderslaapkamer aan de voorzijde biedt volop ruimte. De aanwezige inbouwkast kan eenvoudig weer in gebruik worden genomen.
Slaapkamers achterzijde
Aan de achterzijde bevinden zich meerdere kamers met diverse gebruiksmogelijkheden. Op de aanbouw is een extra slaapkamer gerealiseerd met daarachter nog een aanvullende kamer. Deze ruimtes lenen zich uitstekend als extra slaapkamer, werkplek of hobbyruimte. Door samenvoeging kan hier zelfs een bijzonder ruime master bedroom worden gecreëerd. Daarnaast is er nog een aparte slaapkamer aan de achterzijde aanwezig.
Tweede verdieping
Nog meer ruimte!
Via een vouwdeur op de overloop bereik je met een vaste trap de ruime zolderverdieping. Direct valt op hoeveel potentie deze verdieping biedt. Dankzij de in circa 2005 geplaatste kunststof dakkapel komt er prettig daglicht binnen.
Momenteel is de zolder grotendeels open en bevinden zich hier de cv-ketel (Itho Daalderop, 2017) en de zonneboiler met een 110 liter boiler. Er is al een klein wandje geplaatst met het idee om een voorzolder te realiseren voor de technische installaties met daarachter een aparte (slaap)kamer. Dit plan is destijds niet volledig uitgevoerd maar de basis is al aanwezig. Recent is bovendien de achterzijde van de zolder opnieuw gestukt. Met verdere afwerking is hier eenvoudig een volwaardige en waardevolle extra woonlaag te creëren.
Tuin
Buitenlucht doet je goed!
De diepe achtertuin op het noorden is verrassend ruim. De tuin is grotendeels bestraat en wordt aan beide zijden omlijst door groene borders. Er is volop ruimte voor meerdere gezellige zitjes, een speelplek voor de kinderen of een comfortabele loungehoek om lange zomeravonden door te brengen. De steigerhouten bank, inclusief kussens, blijft achter — zo kun je hier direct genieten van je nieuwe buitenplek.
Achter in de tuin staat een ruime stenen berging over de volledige breedte van de tuin; ideaal voor fietsen, opslag of hobbyruimte. Via een poort in de tuin bereik je de achterom (recht van overpad van toepassing).
Bijzonderheden
* 12 zonnepanelen en 2 extra panelen voor zonneboiler
* vloerverwarming begane grond en badkamer
* energielabel D
* vernieuwde badkamer
* grote tuin met berging
* nagenoeg gehele woning voorzien van rolluiken
* dubbel glas
Sinds 1 september 2010 is het verplicht om aan de eisen te voldoen van de meetinstructie voor gebruiksoppervlakte woningen en bruto inhoud. Deze is verplicht gesteld door de NVM, VastgoedPRO en VBO om de kwaliteit van inmetingen te waarborgen. Deze meetinstructie is gebaseerd op de NEN2580: de norm voor het bepalen van oppervlakten en de inhoud van woningen. Voor de gevallen waarin de meetinstructie geen uitsluitsel geeft over het bepalen van de gebruiksoppervlakte, moet namelijk de NEN2580 worden gebruikt. Meetinstructies die wel nauwkeurig uitsluitsel kunnen geven over oppervlakte bepaling, mogen dus afwijken van de NEN2580.
Brabantstad Makelaardij laat haar woningen inmeten door een erkend bedrijf. Mocht je het meetrapport willen inzien, dan horen wij dit graag.