Beschrijving
Nieuwsgierig?
Welkom aan de Watertorenstraat 2; een heerlijke plek om thuis te komen!
Deze charmante jaren ’30 woning combineert de warme sfeer van vroeger met het comfort van nu. De woning ligt in de geliefde Bomenbuurt op loopafstand van het bruisende centrum van Tilburg, met gezellige winkels, horeca en het N.S.-station om de hoek. Ook de uitvalswegen richting Eindhoven, Breda en ’s-Hertogenbosch zijn binnen enkele minuten bereikbaar.
De woning is door de jaren heen netjes onderhouden en op verschillende punten gemoderniseerd: zo is het buitenschilderwerk in 2024 vernieuwd en is er in 2022 een nieuwe CV-ketel geplaatst. De tuin op het zuiden biedt volop zon en privacy en met de aluminium overkapping kun je hier het hele jaar door genieten van het buitenleven.
Met een lichte woonkamer, ruime eetkeuken, drie slaapkamers en een grote bergzolder biedt deze woning verrassend veel ruimte — ideaal voor stellen of jonge gezinnen die op zoek zijn naar een gezellige plek dicht bij het centrum.
Deze woning is absoluut een bezichtiging waard. Interesse? Neem dan snel contact op voor een afspraak. Deze woning zou zomaar eens jouw nieuwe thuis kunnen zijn! Wij zijn bereikbaar via WhatsApp, telefonisch of via onze website.
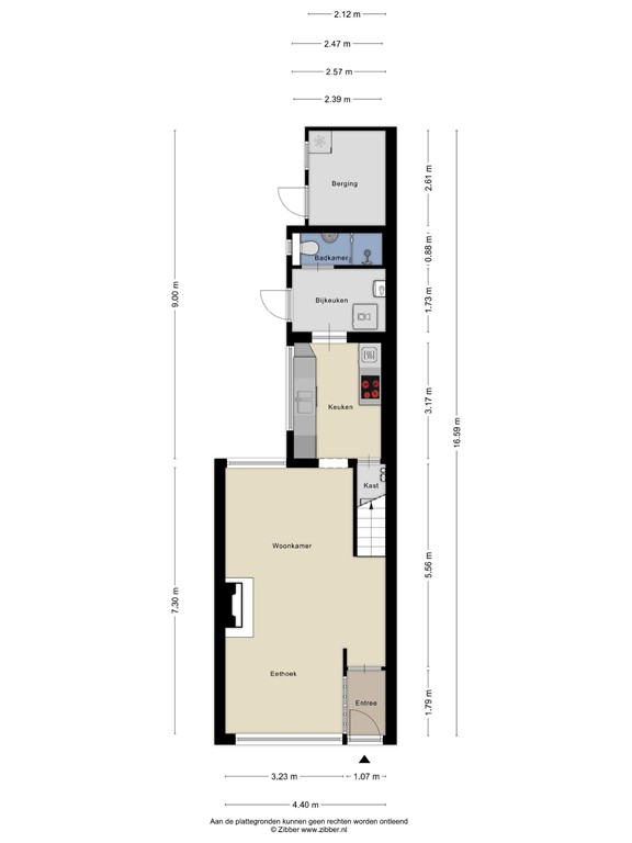
Indeling
Welkom!
Je komt binnen in een nette hal met stenen vloer en ruimte voor de garderobe. Vanuit hier stap je de sfeervolle woonkamer binnen.
Dit voelt als thuiskomen!
De woonkamer ademt de charme van de jaren ’30 met een parketvloer en een knusse schouw met open haard (deze is niet in gebruik geweest door de huidige bewoner). Dankzij de grote ramen aan zowel de voor- als achterzijde valt er heerlijk veel daglicht binnen. De trap naar de eerste verdieping is stijlvol geïntegreerd in de woonkamer wat zorgt voor een open en ruimtelijk gevoel. Vanuit de woonkamer loop je direct door naar de ruime, halfopen keuken — een fijne overgang die zorgt voor een gezellige verbinding tussen wonen en koken.
Keukenprins of prinses?
De ruime, halfopen eetkeuken vormt het hart van het huis. De keuken heeft een luxe uitstraling met een granieten werkblad en crème frontjes en is van alle gemakken voorzien. Zo beschikt de keuken over een nieuwe inductiekookplaat (2025), een vaatwasser (2020), een koelkast, een losse oven (2019), een magnetron en een afzuigkap. Dankzij de praktische opstelling aan twee zijden is er niet alleen veel werkruimte, maar ook volop kastruimte. In de keuken bevindt zich tevens de kelder met de vernieuwde groepenkast, die is uitgebreid na het plaatsen van de inductiekookplaat. De stenen vloer in de keuken loopt mooi door naar de bijkeuken wat zorgt voor een verzorgd geheel.
In de bijkeuken vind je aansluitingen voor was apparatuur en de CV-ketel (Remeha Avanta, 2022).
Even ontspannen!
De badkamer is compact maar efficiënt ingedeeld. De badkamer is volledig is betegeld en daardoor gemakkelijk in onderhoud is. Er is een fijne douche, een wastafeltje met spiegel, een toilet en een moderne designradiator die zorgt voor extra comfort.
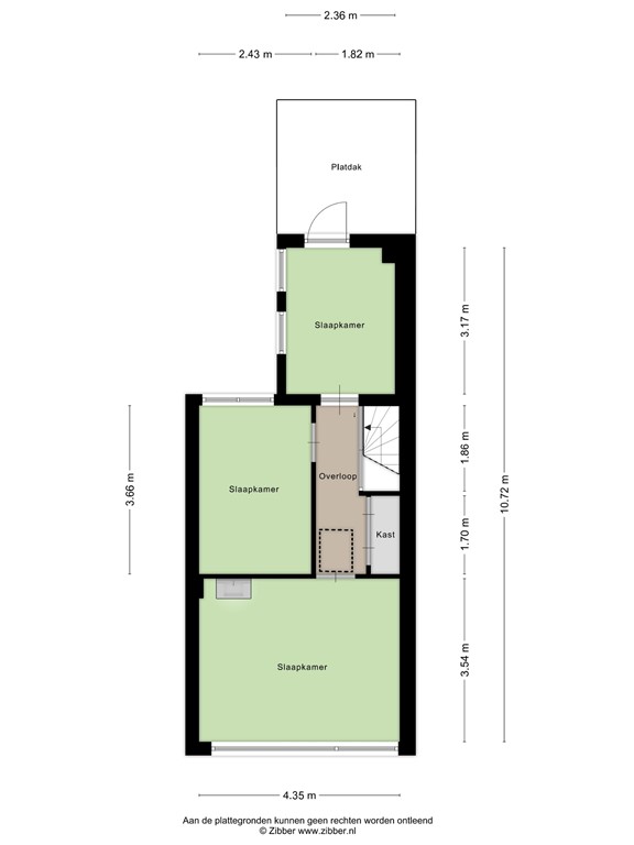
Eerste verdieping
Kom tot rust!
De trap in de woonkamer brengt je naar de 1e verdieping waar een schuifdeur toegang geeft tot de overloop. Op deze verdieping zijn 3 slaapkamers aanwezig van een fijn formaat. De ouderslaapkamer aan de voorzijde van de woning is voorzien van parketvloer (doorlopend vanaf de overloop) en beschikt over een moderne wastafel met meubel , spiegelkast en een elektrische boiler voor warm water. (2019). De overige 2 slaapkamers aan de achterzijde van de woning hebben een laminaatvloer waarvan één met toegang tot het platte dak. De overloop heeft daarnaast een handige vaste kast met veel extra opbergruimte.
Tweede verdieping
Via een vlizotrap bereik je de royale bergzolder met dakraam. Deze ruimte biedt volop bergruimte – ideaal voor koffers, kerstspullen of gewoon om netjes spullen uit het zicht op te bergen.
Tuin
Buitenlucht doet je goed!
De zonnige tuin op het zuiden is een heerlijke plek om te genieten van het buitenleven. Achterin de tuin bevindt zich de aangebouwde stenen berging, ideaal voor het opbergen van fietsen en tuingereedschap. Daarnaast is er in de tuin zelf een deur aanwezig die toegang biedt tot de achterom — wel zo praktisch. Een echte blikvanger is de moderne antracietgrijze aluminium overkapping waarvan het dak eenvoudig open en dicht kan. Zo kun je zowel op zonnige dagen als bij een zomers buitje comfortabel buiten zitten. Door de gunstige ligging geniet je hier vrijwel de hele dag van de zon en is er altijd wel een fijn plekje om te ontspannen.
Bijzonderheden
* energielabel F
* Ketel 2022
* buitenschilderwerk vernieuwd in 2024
* nieuwe overkapping achter in de tuin
Sinds 1 september 2010 is het verplicht om aan de eisen te voldoen van de meetinstructie voor gebruiksoppervlakte woningen en bruto inhoud. Deze is verplicht gesteld door de NVM, VastgoedPRO en VBO om de kwaliteit van inmetingen te waarborgen. Deze meetinstructie is gebaseerd op de NEN2580: de norm voor het bepalen van oppervlakten en de inhoud van woningen. Voor de gevallen waarin de meetinstructie geen uitsluitsel geeft over het bepalen van de gebruiksoppervlakte, moet namelijk de NEN2580 worden gebruikt. Meetinstructies die wel nauwkeurig uitsluitsel kunnen geven over oppervlakte bepaling, mogen dus afwijken van de NEN2580.
Brabantstad Makelaardij laat haar woningen inmeten door een erkend bedrijf. Mocht je het meetrapport willen inzien, dan horen wij dit graag!
Plattegronden
177857125_1584729_water_begane_grond_first_design_20251009_5be5bf.jpg
177857125_1584729_water_eerste_verdiepi_first_design_20251009_3378df.jpg
177857125_1584729_water_overkapping_first_design_20251009_386ab4.jpg
177857125_1584729_water_zolder_first_design_20251009_55d3ef.jpg