Beschrijving
Nieuwsgierig?
Welkom aan de Lariksstraat 4 in Dorst!
In het hart van het gezellige Dorst in een rustige en kindvriendelijke straat, staat deze ruime twee-onder-een-kapwoning met garage en een prachtige diepe tuin op het Westen. Hier woon je landelijk en groen, terwijl je binnen enkele minuten met de auto in Breda, Oosterhout of Tilburg bent. Dorst zelf biedt alles wat je nodig hebt: een basisschool, sportverenigingen, een café-restaurant en diverse winkels. En voor de liefhebbers van natuur: bossen, wandelpaden en fietsroutes liggen letterlijk om de hoek.
De woning is gebouwd in 1960 en heeft door de jaren heen een goede basis behouden. Binnen is de afwerking deels gedateerd, maar dat betekent dat je hier naar eigen smaak kunt moderniseren en zo een écht thuis voor jezelf kunt maken. Wat direct opvalt is de hoeveelheid ruimte: zowel binnen als buiten. De grote woonkamer met serre, de ruime slaapkamers, de nette badkamer én de gigantische tuin maken dit huis tot een heerlijke gezinswoning met eindeloze mogelijkheden.
Plan snel een bezichtiging en ontdek zelf de mogelijkheden van deze prachtige woning. Wij staan voor u klaar via WhatsApp, telefoon of onze website.
Indeling
Welkom!
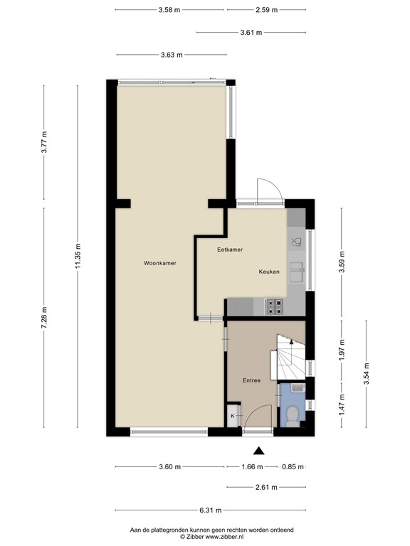
Bij binnenkomst kom je in de hal met toegang tot het toilet, de meterkast, trapopgang en de woonkamer.
De royale L-vormige woonkamer is licht en ruimtelijk. Aan de voorzijde ligt een parketvloer, terwijl de aangebouwde serre (2002) is voorzien van een stenen vloer en een glazen dak. Vanuit de serre stap je via de schuifpui direct de tuin in. Een heerlijke plek waar binnen en buiten moeiteloos in elkaar overlopen.
Keukenprins of prinses?
De ruime woonkeuken is enigszins gedateerd maar netjes onderhouden en beschikt over veel kastruimte, inclusief een handige apothekerskast. De grijze frontjes en het kunststof blad in granietlook geven de keuken een tijdloze uitstraling. Moderne apparatuur zoals een koel-vriescombinatie (2024) en een vaatwasser (2022) maken het geheel praktisch en comfortabel. Hier is voldoende ruimte voor een eettafel – ideaal voor lange, gezellige maaltijden.
Eerste verdieping
Kom tot rust!
Via de vaste houten trap kom je op de overloop met praktische inbouwkast.
Er zijn twee ruime slaapkamers, beide met vaste kasten. De kamers vragen om wat modernisering, maar bieden volop mogelijkheden voor een fijne indeling. Daarnaast is er een aparte wasruimte met extra wastafel, toilet en aansluitingen voor wasmachine en droger.
Even ontspannen!
De badkamer is keurig en voorzien van luxe. Met een groot bubbelbad met jetstreams, een royale inloopdouche, een wastafelmeubel en lichte betegeling is dit een plek waar je echt tot rust kan komen.
Tweede verdieping
Nog meer ruimte!
Via de vaste trap bereik je de zolderverdieping. Op de voorzolder vind je de CV-installatie (Nefit Topline, 2012). Achterin ligt een royale derde slaapkamer met een dakkapel en twee kunststof dakramen, waardoor de kamer heerlijk licht is. Het platte dak van de dakkapel is recent vernieuwd. Bovendien is er extra bergruimte beschikbaar via een luik in het plafond – ideaal voor spullen die je niet dagelijks nodig hebt.
Tuin
De absolute blikvanger van deze woning is de riante achtertuin op het westen. Hier geniet je de hele dag van de zon. De tuin is een mix van gras, borders en bestrating, en beschikt over een houten berging, een garage met elektriciteit (dak vernieuwd in 2008) en een gezellige overkapping met dakpannen. Kortom: een tuin die uitnodigt tot spelen, tuinieren of lange zomeravonden buiten.
Bijzonderheden
* niet bewoningsclausule wordt opgenomen in de koopovereenkomst
* ouderdomsclausule en asbestclausule worden opgenomen in de koopovereenkomst
* energielabel D
* enorme tuin met houten tuinhuisje en gezellige overkapping
* kunststof kozijnen
* geen vragenlijst beschikbaar
Sinds 1 september 2010 is het verplicht om aan de eisen te voldoen van de meetinstructie voor gebruiksoppervlakte woningen en bruto inhoud. Deze is verplicht gesteld door de NVM, VastgoedPRO en VBO om de kwaliteit van inmetingen te waarborgen. Deze meetinstructie is gebaseerd op de NEN2580: de norm voor het bepalen van oppervlakten en de inhoud van woningen. Voor de gevallen waarin de meetinstructie geen uitsluitsel geeft over het bepalen van de gebruiksoppervlakte, moet namelijk de NEN2580 worden gebruikt. Meetinstructies die wel nauwkeurig uitsluitsel kunnen geven over oppervlakte bepaling, mogen dus afwijken van de NEN2580.
Brabantstad Makelaardij laat haar woningen inmeten door een erkend bedrijf. Mocht je het meetrapport willen inzien, dan horen wij dit graag!
Plattegronden
176491336_1574680_larik_begane_grond_first_design_20250905_83ed47.jpg
176491336_1574680_larik_eerste_verdiepi_first_design_20250905_c056c2.jpg
176491336_1574680_larik_tweede_verdiepi_first_design_20250905_7fc3a4.jpg
176491336_1574680_larik_zolder_first_design_20250905_852d1a.jpg
176491336_1574680_larik_garage_first_design_20250905_586f94.jpg
176491336_1574680_larik_overkapping_first_design_20250905_273a97.jpg
176491336_1574680_larik_berging_first_design_20250905_2fafdd.jpg